Описание

Предлагаем вашему вниманию трехкомнатную квартиру 150 м² в элитном ЖК «Садовые кварталы», расположенную в 5 минутах ходьбы от станции метро "Спортивная".

Ваш идеальный дом начинается здесь!

Просторная 3-комнатная квартира площадью 150 м² в престижном жилом комплексе «Садовые кварталы» ждет своего владельца. Чистый холст без отделки — это уникальная возможность создать интерьер своей мечты:от элегантной классики до смелого современного дизайна. Высокие потолки, панорамные окна, свободная планировка и возможность обустройства гардеробных, зон отдыха или рабочего кабинета — всё подчинится вашему вкусу.

Площадь кухни:23.02

Санузел:3

Жилая площадь:118.86

Этаж:4

Тип дома:Монолитный

Готовность:Готов полностью

Есть вопросы по объекту? Звоните

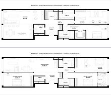
Планировка

прихожая+санузел+кухня-гостиная+гостиная+гардеробная+санузел+спальня+мастер-спальня+гардеробная+санузел

Описание района

О ЖК «Садовые кварталы»:

Это клубный комплекс премиум-класса, сочетающий современные технологии и уют европейского квартала.

Безопасность и комфорт:охраняемая территория, подземный паркинг с личными местами, «умные» системы контроля доступа.

Экологичный подход:озелененные дворы без машин, зоны отдыха с фонтанами и авторским ландшафтным дизайном.

Инфраструктура для жизни:фитнес-центр с бассейном, собственный SPA-салон, кафе и продуктовый бутик на территории.

Район мечты в сердце города!

ЖК расположен в исторически престижном районе, где соседствуют тишина зеленых бульваров и динамика деловой жизни.

Транспортная доступность:5 минут до метро, 10 минут на авто до центра, удобный выезд на магистрали.

Инфраструктура:топовые школы и детские сады, галереи, театры, рестораны мишленовского уровня и бутики люксовых брендов.

Отдых и спорт:пешая доступность к центральному парку, велодорожки, теннисные корты и яхт-клуб на ближайшей набережной.

Статусная локация для тех, кто ценит исключительность.

Читать далее

Инфраструктура

На территории ЖК:

Детский сад
Школа
Супермаркет
Ресторан
Медцентр
Фитнесцентр
Парк
Салон красоты

Лот:97197837

280000000

3633900

3075400

Записаться на просмотр
Предложите свою цену
В сравнение В избранное Скачать

150 м2

Без отделки

в ипотеку

Ваш персональный менеджер

Перезвонить мне

Похожие предложения

Помогу подобрать Вам недвижимость быстро и по привлекательной цене

Расположение объекта на карте

×
Заявка отправлена