Описание

Вашему вниманию предлагается студия в уникальном ЖК JOIS. JOIS — это вдохновляющее торжество изысканности и новый архитектурный шедевр, продуманный для жизни.

Студия 30 м2 имеет безупречный вид, который позволяет создать панорамное остекление. Окна — основной элемент внешнего вида башен JOIS. Они обрамлены металлическими панелями, создающими колоритный рельефный рисунок на протяжении каждого этажа. Энергоэффективное оконное покрытие уменьшает нагрузку на отопление в холодное время года и позволяет максимально наполнить жилые пространства внутри естественным светом, одновременно защищая от негативных эффектов прямого солнечного излучения.

Красота лаконичного и сдержанного оформления фасадов башен подчеркивается подсветкой, индивидуально придуманной для каждого из зданий. Каждая башня JOIS имеет свою цветовую гамму, которая меняется в зависимости от силы ветра, создавая динамический эффект.

Ступенчатая форма и расположение корпусов увеличивает доступную обзорность, подчеркивая виды на исторические и природные достопримечательности центра Москвы и парки запада столицы.

Проект JOIS премиум-класса расположен рядом с Березовой рощей, возводится неподалеку от Звенигородского шоссе и станции метро «Хорошево». Рядом есть прямой съезд к ТТК, автомагистрали расположены достаточно близко, при этом территория защищена от шума шоссе. За 20 минут на машине можно добраться до площади Арбат, еще ближе находится главный деловой район столицы «Москва-Сити». Реализацией проекта занимается компания «MR Group».

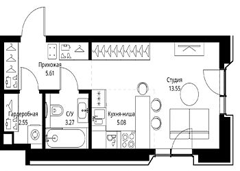
Площадь комнаты:13.55

Площадь кухни:5.08

Санузел:совмещенный

Жилая площадь:13.55

Этаж:13

Тип дома:Монолитный

Готовность:Строится

Есть вопросы по объекту? Звоните

Планировка

прихожая, гардеробная, сан-узел, кухня-гостиная

Описание ЖК

ЖК JOIS расположен в р-не Хорошёво-Мнёвники.
Цена квартир варьируется от 11965320 руб.
Год постройки: 2024.

Читать далее

Инфраструктура

На территории ЖК:

Детский сад
Школа
Супермаркет
Ресторан
Медцентр
Фитнесцентр
Прогулочная набережная
Парк
Салон красоты
Детские площадки

Лот:84323934

18989954

244100

209300

Записаться на просмотр
Предложите свою цену
В сравнение В избранное Скачать

30 м2

Без отделки

в ипотеку

Ваш персональный менеджер

Видецких Олег
Специалист отдела продаж
городской недвижимости

+7 (499) 110-57-98
Перезвонить мне

Похожие предложения

Видецких Олег
Специалист отдела продаж
городской недвижимости

Помогу подобрать Вам недвижимость быстро и по привлекательной цене

Расположение объекта на карте

×
Заявка отправлена